米子市の不動産サイト 西米商事サイト > 買う > 【山陰ライフ】米子市旗ヶ崎9丁目建売住宅3号
【山陰ライフ】米子市旗ヶ崎9丁目建売住宅3号
- 所在地
- 米子市旗ヶ崎9丁目 [地図を見る]
- 校区
- 住吉小学校・後藤ヶ丘中学校
- 築年月(築年数)
- 2026年4月 ( 築-1年 )
- 建物面積
- 99.37m²
- 土地面積
- 142.08m²
- 間取り
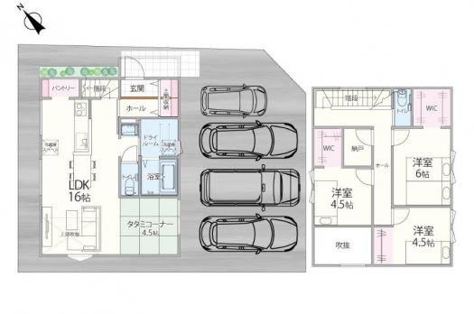
- 4LDK ( )
物件番号 No.S1314(お問い合わせ時にお伝えください)
- 物件名
- 【山陰ライフ】米子市旗ヶ崎9丁目建売住宅3号
- 物件番号
- S1314
- 価格
- 2,860万円
- 所在地
- 米子市旗ヶ崎9丁目
- 交通
- 上後藤二区バス停まで徒歩7分
| 物件名 | 【山陰ライフ】米子市旗ヶ崎9丁目建売住宅3号 |
|---|---|
| 物件番号 | S1314 |
| 所在地 | 米子市旗ヶ崎9丁目 |
| 交通 | 上後藤二区バス停まで徒歩7分 |
| 小学校区 | 住吉小学校140m |
| 中学校区 | 後藤ヶ丘中学校1170m |
| 価格 | 2,860万円 |
| 建物構造/階建 | 木造2階建 |
| 築年数(築年月) | 2026年4月(築-1年) |
| 駐車場 | 3台以上可 |
| 間取り | 4LDK() |
| 建物面積 | 99.37m²(30.05坪) |
| 土地面積 | 142.08m²(42.97坪) |
| 接道状況 | 北東側幅員4m/南東側幅員4m |
| 主要採光面 | |
| セットバック | |
| 私道負担面積 | |
| 都市計画 | 市街化区域 |
| 地目 | 宅地 |
| 用途地域 | 第一種中高層住居専用地域 |
| 地勢 | 平坦 |
| 建ぺい率 | 60% |
| 容積率 | 200% |
| 土地権利 | 所有権 |
| 国土法届出 | |
| 現状 | 建築中 |
| 引渡日 | 2026年5月予定 |
| 取引態様 | 仲介 |
| 備考 | |
| 情報更新日 | 2026年02月27日 |
| 更新予定日 | 2026年03月12日 |
























