米子市の不動産サイト 西米商事サイト > 借りる > 博労町4丁目借家
博労町4丁目借家
広い平家☆ご家族の多い方おすすめです☆
- 賃料
- 84,000円
- 間取り
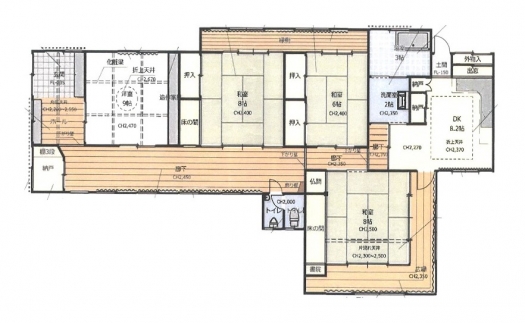
- 4DK ( DK8.2・洋9・和8・和8・和6 )
- 共益費
- 無
- 敷金/礼金/償却
- 1ヶ月/1ヶ月/
- 所在地
- 米子市博労町4丁目49 [地図を見る]
- 校区
- 啓成小学校・東山中学校
- 築年月(築年数)
- 1973年1月 ( 築52年 )
- 専有面積
- 160.82m²
- 備考
- ・要保証会社加入
初回保証料:家賃総額の40%
更新保証料:11,000円/1年毎
・仲介手数料:1.1ヶ月(消費税込)
・退去時ハウスクリーニング費借主負担
・平成29年にリフォーム実施
物件番号 No.R744-1445(お問い合わせ時にお伝えください)
- 物件名
- 博労町4丁目借家
- 物件番号
- R744-1445
- 賃料
- 84,000円
- 所在地
- 米子市博労町4丁目49
- 交通
- JR境線博労町駅より徒歩9分
| 物件名 | 博労町4丁目借家 |
|---|---|
| 物件番号 | R744-1445 |
| 所在地 | 米子市博労町4丁目49 |
| 交通 | JR境線博労町駅より徒歩9分 |
| 小学校区 | 啓成小学校 |
| 中学校区 | 東山中学校 |
| 賃料 | 84,000円 |
| 共益費(管理費) | 無 |
| 敷金/礼金/償却 | 1ヶ月/1ヶ月/ |
| 更新料 | |
| 更新事務手数料 | 22,000円(消費税込) |
| 住宅保険 | 要住宅総合保険加入 |
| 建物構造/階建 | 木造平家建 |
| 築年数(築年月) | 1973年1月(築52年) |
| 駐車場 | 3台駐車可能 |
| 間取り | 4DK(DK8.2・洋9・和8・和8・和6) |
| 専有面積 | 160.82m²(48.64坪) |
| 現状 | 空 |
| 引渡日 | 相談 |
| 取引態様 | 仲介 |
| 備考 | ・要保証会社加入 初回保証料:家賃総額の40% 更新保証料:11,000円/1年毎 ・仲介手数料:1.1ヶ月(消費税込) ・退去時ハウスクリーニング費借主負担 ・平成29年にリフォーム実施 |
| 情報更新日 | 2025年12月17日 |
| 更新予定日 | 2025年12月30日 |






























